Unsere Baugebiete in Oberfranken

Projekt Mehrgenerationensiedlung
Link
Details

Grundstücke Schwarzach
Fertiggestellt in 2000 - Ausverkauft
Details

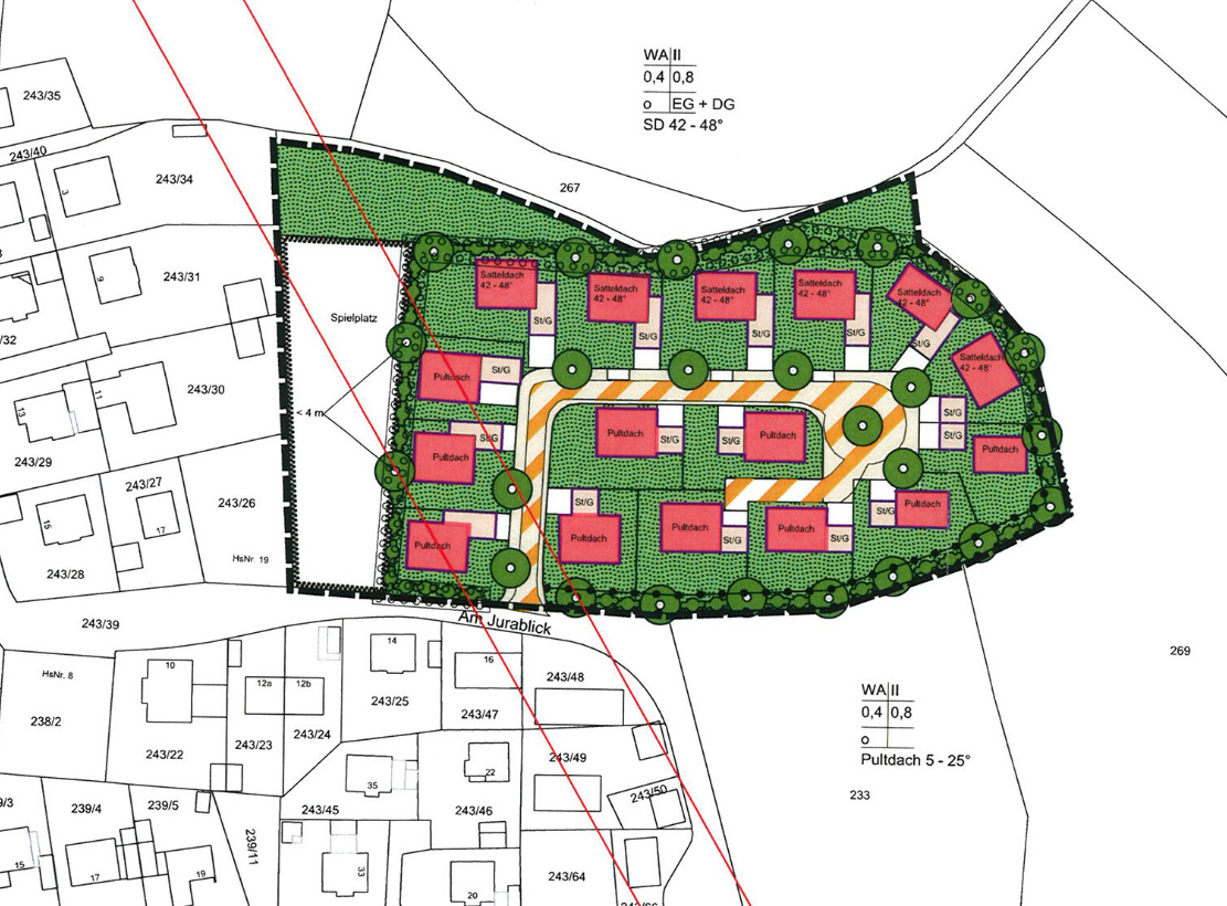
Baugebiet Am Jurablick/Neudrossenfeld
Ausverkauft

Baugebiet Rögnitz
Fertiggestellt in 2000

Zukunftentwicklungsland Bindlacher Berg
Details
Architektur
ist im Idealfall immer direkte Auseinandersetzung mit den Menschen."
(Richard Meier)
.